0(212) 813 13 00 | info@alfalliance.com
  • MEDİPOL Pendik Hastanesi Yanı İSKANLI SATILIK PLAZA-ALF ALLİANCE TİCARİ

    Portföy No
    21000
    Oda Sayısı
    9+0
    m² (Brüt)
    3.255 m²
    m² (Net)
    3155 m²
    Bulunduğu Kat
    9
    Kat Sayısı
    9 Katlı
    Banyo
    5
    Tuvalet
    9
    İnşaat Yılı
    2004
    Kullanım Durumu
    Kiracılı
    Tavan Yüksekliği
    MAJESTY PLAZA

    Kurumsal ve Yüksek Kira Getirili Komple SATILIK İSKANLI PLAZA

    Pendik Bahçelievler Mahallesi 10898 ADA 1 PARSEL , 781m2 ARSA Üzerinde
    Adnan Menderes Bulvarı Cepheli


    LOKASYON:

    Pendik ‘ in En İşlek Ana Bulvarında
    MEDİPOL Pendik Hastanesi Yanında
    Pendik Belediyesine Yürüme Mesafesinde
    Tabela Değeri Çok Yüksek

    PLAZA TEKNİK ÖZELLİKLERİ:

    -İskanlı
    -7/24 Güvenlik ve CCTV Kamera Sistemi
    -Yangın İhbar ve Sprink Sistemi Full Yapılı
    -Yangın Merdivenli
    -Alüminyum Cam Giydirme Cephe
    -Giriş Kat Bahçe Alanı
    -Asansör 2 Adet
    -1.Sınıf Giriş Plaza Lobi Alanı
    -Yüksek Hızlı Fiber İnternet Altyapısı

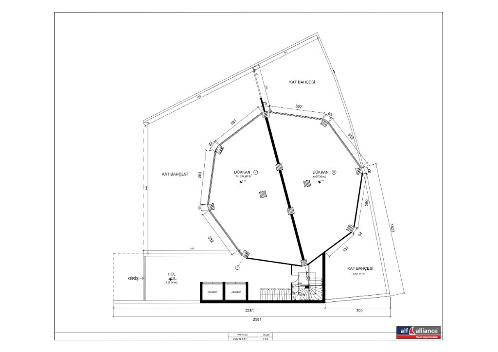
    KAT PLANLARI:

    6.Kat 182m2
    5.Kat 310m2
    4.Kat 350m2
    3.Kat 350m2
    2.Kat 350m2
    1.Kat 350m2
    Zemin Kat 270m2
    1.Bodrum 575m2
    2.Bodrum 491m2
    Lobi Alanı 93m2

    9 Kat Toplam Kapalı Brüt Alan: 3.255m2

    TEK YETKİLİ : Fuat MENTEŞELİ ALF ALLİANCE TİCARİ
    Ticari Gayrimenkulde Uzman….




    Diğer Özellikler

  • Açık Otopark
  • Bahçe
  • Balkon
  • Betonarme
  • Cam Giydirme
  • Kapalı Otopark
  • Özel Garaj
  • Teras
  • Alışveriş Merkezi
  • Denize Yakın
  • Marmaray'a Yakın
  • Otoyola Yakın
  • Şehir İçi
  • Toplu Ulaşıma Yakın
  • Asansör
  • Çelik Kapı
  • Depo Var
  • Doğalgazlı
  • Güvenlik Kamerasıı
  • Hidrofor
  • Jeneratör
  • Kat Mülkiyeti
  • Klima
  • Merkezi Havalandırma
  • Özel Güvenlik
  • Su Deposu
  • Yangın Merdiveni
  • {Konumu}

    Satılık Plaza
    Bahçelievler, Pendik
    İstanbul Anadolu
    238.000.000 ₺
    Gayrimenkul ile ilgili öğrenmek istediklerinizi danışmana iletebilirsiniz.
    Hakkımızda
    Hizmetlerimiz
    Ofisler
    Danışmanlar
    Satılık İlanlar
    Kiralık İlanlar
    Projeler
    Danışman Ol
    Talepler
    Haberler
    Referanslarımız